СТРОИТЕЛЬСТВО КАРКАСНЫХ ДОМОВ
ОТ ФУНДАМЕНТА ДО КОНЬКА
пн-пт: с 09 до 17
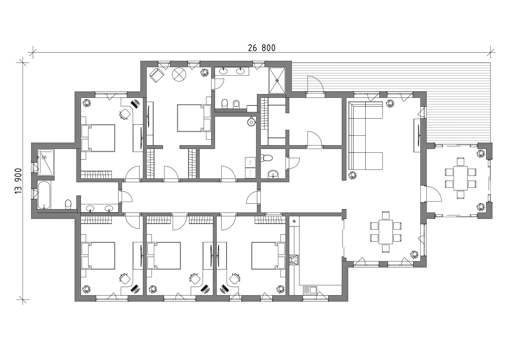
План 1-го этажа
Фото строительства по данному проекту
Более подробную информацию о проекте и стоимости строительства отправим на Вашу почту.
Напишите Ваше Имя, Email, нажмите "узнать стоимость", и мы пришлем Вам расчет на строительство.